Superbe immeuble neuf composé de 7 spacieux appartements de standing avec parkings.
L'ensemble est à vendre par rachat de parts de société détenant uniquement cet immeuble.
Situé au coin de la chaussée de Louvain et de la rue d'Evere , nous vous proposons en ensemble de 7 appartements aux finitions soignées avec places de parkings.
Chaque appartement à ses propres panneaux solaires, chauffage au sol et pompe à chaleur individuelle.
Au rez:
1 grand appartement de 107 m² avec 3 ch, 2 sdb, 2 wc et un grand rangement ainsi qu'un jardin de 90 m²
1 appartement de 92 m² avec 2 ch et 2 sdb, 2 wc , un grand rangement et une terrasse de 8 m²
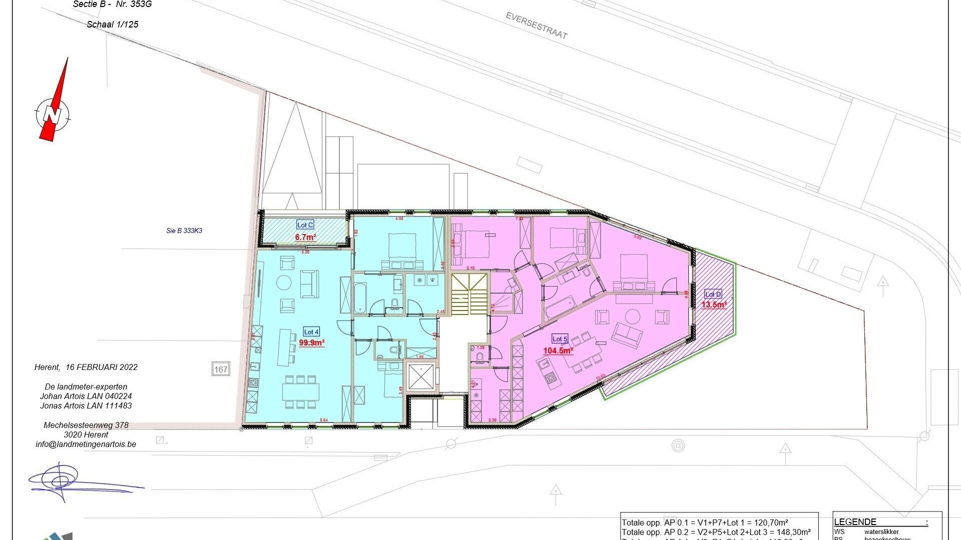
Au 1er et 2ieme chaque fois:
1 appartement de 104 m² avec 3 ch, 2 sdb, 2 wc et un grand rangement ainsi qu'une terrasse de 13.5 m²
1 appartement de 100 m² avec 2 ch, 1 sdb, 2 WC, un grand rangement et une terrasse de 6.7 m²
Au 3 ieme, un penthouse de 122.7 m² avec avec 2 ch, 2 sdb, 2 wc, un grand rangement et trois terrasses totalisant 33.8 m²
Au sous sol, 6 emplacements et un emplacement extérieur.
Plans détaillés par étage dans les photos et sur notre site www.ap-p.be
Très bonne situation à proximité immédiate de la Woluwelaan avec accès aisé à la E 40 et au ring de Bruxelles ainsi qu'à Zaventem ou aux cliniques universitaires St Luc.
Ecole, commerces et transports en commun à proximité immédiate.
Ne manquez pas cette opportunité, réservez dès maintenant votre visite au 0478 48 47 00 ou via info@ap-p.be
1972 vues
- Prix net
- € 2.930.000
- Immeuble de rapport
- Oui
- Destination
- Zone d'habitat
- Permis de construire
- Oui
- Droit de préemption
- Oui
- Invocation
- Pas de correction juridique ou mesure administrative imposée
Quartier
| Score de mobilité | 82% |
|---|---|
| Distance au centre | 1.837 m |
| Distance jusqu'à l'arrêt de bus | 21 m |
| Distance à la gare | 2.651 m |
| Distance jusqu'au magasin | 815 m |
| Distance à l'école | 177 m |
| Âge moyen dans le quartier | 38 ans |
Estimez votre remboursement mensuel
Vous payez chaque mois.
Ce calcul est purement informatif et non contractuel.
Je suis interessé


Philippe Leplat
philippe@ap-p.be
+32 78 48 47 00





























