Terrain à bâtir avec maison témoin par Verelst Opportunité unique à Herent
Découvrez ce terrain à bâtir de 827 m²magnifiquement situé dans une rue calme et sans issue du quartier vert de Herent. Un développement ouvert peut être réalisé sur ce terrain , entièrement selon vos propres souhaits ou sur la base d'une maison témoin de Verelst - un début idéal pour ceux qui rêvent d'une maison élégante et moderne dans un emplacement de premier choix.
Principaux atouts :
- Taille du terrain: 827 m²
- Surface constructible maximale: 139 m²
- Possibilités supplémentaires:
- Dépendance jusqu'à 24 m² (comme une véranda ou un bureau à domicile)
- Maison de jardin jusqu'à 10 m²
- Possibilités de construction: Deux niveaux de construction autorisés
- Parking suffisant: Plusieurs voitures peuvent être garées facilement devant la porte.
Situation :
Le terrain à bâtir est situé dans un quartier résidentiel agréable et verdoyant. Grâce au cul-de-sac, il n'y a pratiquement pas de circulation, ce qui est idéal pour les familles ou ceux qui recherchent la tranquillité. En même temps, vous êtes facilement relié aux villes environnantes telles que Louvain, Bruxelles et Malines.
2772 vues
- Prix net
- € 675.000
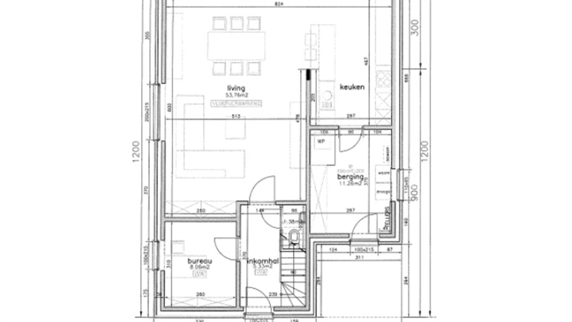
- Surface habitable
- 189,0 m²
- Construction
- 4 façades
- Année de construction
- 2025
- Surface au sol
- 827,0 m²
- Largeur du terrain
- 41 m
- Profondeur du terrain
- 26 m
- Jardin d'orientation
- Sud-est
- Orientation terrasse
- Sud-est
- Chambres
- 3
- Salles de bains
- 1
- Toilettes
- 2
- Salles de douches
- 1
- école de l'environnement
- 1.373 m
- Parking extérieur
- 1
- électricité
- Oui
- Connexion de gaz
- Oui
- Téléphone
- Oui
- Connexion d'eau
- Oui
- Permis de construire
- Indéterminé
- Permis de lotissement
- Oui
- Droit de préemption
- Non
- Invocation
- Pas encore demandé
- Comme preuve de construction
- Indéterminé
Estimez votre remboursement mensuel
Vous payez chaque mois.
Ce calcul est purement informatif et non contractuel.
Je suis interessé


Luca Busseniers
luca@ap-p.be
+32 78 48 47 00









