Building plot with sample house by Verelst Unique opportunity in Herent
Discover this beautifully situated building plot of 827 m² in a quiet dead end street in green Herent. On this plot an open construction can be realized, completely according to your own wishes or based on a sample house by Verelst an ideal start for those who dream of a stylish, modern home in a prime location.
Main assets:
- Plot area: 827 m²
- Maximum buildable area: 139 m²
- Additional possibilities:
- Outbuilding up to 24 m² (such as a veranda or home office)
- Garden house up to 10 m²
- Building possibilities: Two building layers allowed
- Ample parking: Several cars can easily be parked in front of the door.
Location:
The building plot is located in a pleasant, green residential area. Thanks to the dead end street there is hardly any traffic, ideal for families or those looking for peace and quiet. At the same time, you are easily connected to surrounding cities such as Leuven, Brussels and Mechelen.
2774 views
- Netto price
- € 675.000
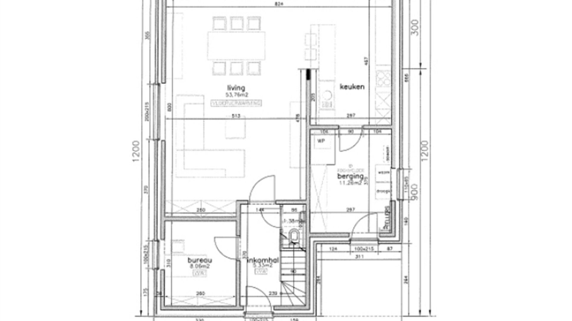
- Surface livable
- 189,0 m²
- Construction
- Detached
- Construction year
- 2025
- Surface lot
- 827,0 m²
- Lot width
- 41 m
- Lot depth
- 26 m
- Orientation garden
- South east
- Orientation terrace
- South east
- Bedrooms
- 3
- Bathrooms
- 1
- Toilets
- 2
- Showers
- 1
- Distance school
- 1.373 m
- Parking outside
- 1
- Electricity
- Yes
- Connection gas
- Yes
- Phone device
- Yes
- Connection water
- Yes
- Planning permission
- Undetermined
- Subdivision permit
- Yes
- Preemption right
- No
- Urbanism citation
- Not yet requested
- As-built attest
- Undetermined
Estimate your monthly installment
Your monthly installment would be .
This calculation is purely informative and not binding.
I am interested


Luca Busseniers
luca@ap-p.be
+32 78 48 47 00









