Grond voor kantoorgebouw of hotel.
Deze projectgrond is gelegen op de hoek van de Grote Kloosterstraat met de Frans Smoldersstraat te Sint Stevens Woluwe. Sectie A nrs 246 V en 246 Y
De grond heeft een oppervlakte van 6a20ca.
Appartementen zouden volgens de gemeente niet hier mogen gerealiseerd worden. Wel bewoning zonder domicilie (hotel, gemeubelde flats), opslag in combinatie met bewoning.
Indien u graag meer informatie wenst, aarzel niet contact op te nemen via 078 48 47 00 of info@ap-p.be
4882 keer bekeken
- Nettoprijs
- € 360.000
- Beschikbaarheid
- Vanaf akte
- Perceel opp.
- 620,0 m²
- Beglazing
- Enkel glas
- Bouwvergunning
- Ja
- Verkavelingsvergunning
- Nee
- Voorkooprecht
- Nee
- Dagvaarding
- Geen rechterlijke herstelmaatregel of bestuurlijke maatregel opgelegd
- As-built attest
- Nee
- Overstromingsrisico
- Niet gelegen in een overstromingsgevoelig gebied
- G-score
- D
- OVAM secite A nr 246 Y Frans Smoldersstraat St Stevens Woluwe.pdf
- OVAM sectie A 246 V Frans Smoldersstraat St Stevens Woluwe.pdf
- stedenbouwkundige info Grote Kloosterstr Frans Smoldersstr 27022015.pdf
- STEDENBOUWKUNDIGUITTREKSEL Grote Kloosterstraat 1932 Zaventem.pdf
- 29012015 kadastraal uittreksel Grote Kloosterstraat Sint Stevens Woluwe BLANCO .pdf
- bouwvergunning blaco 20170227.pdf
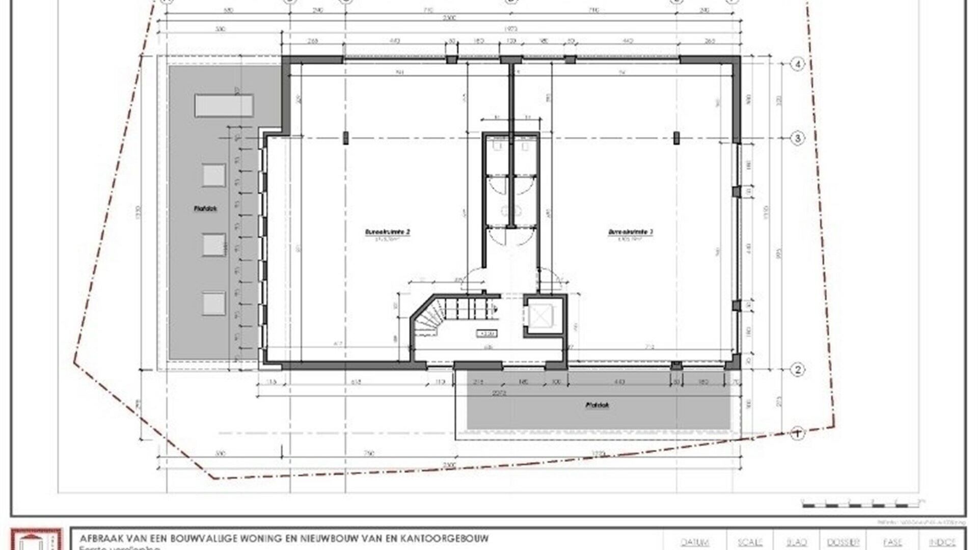
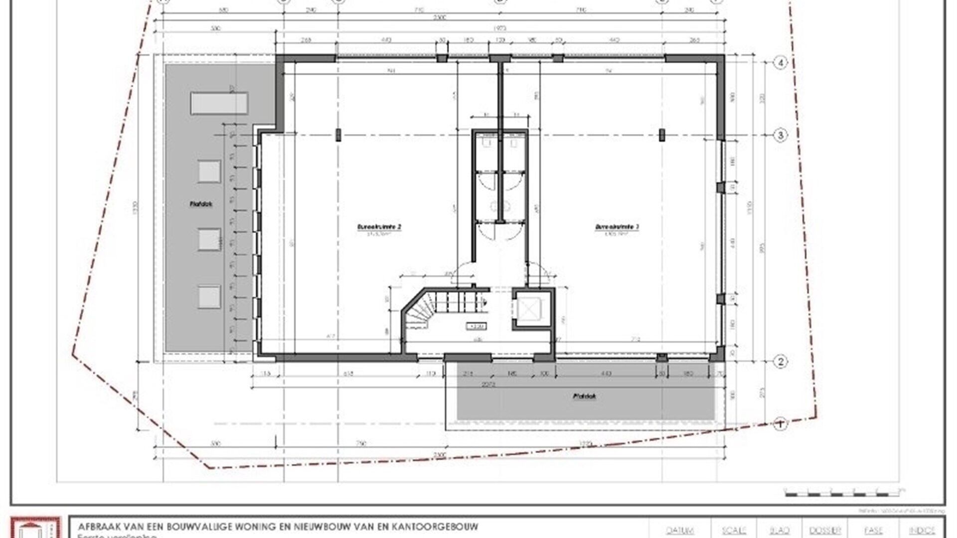
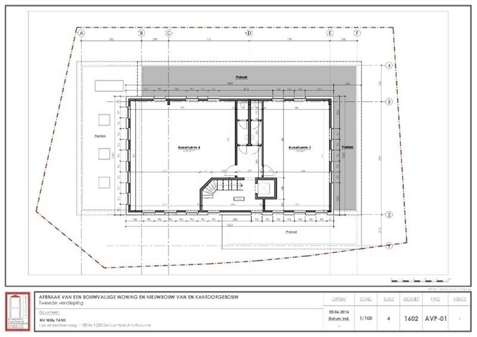
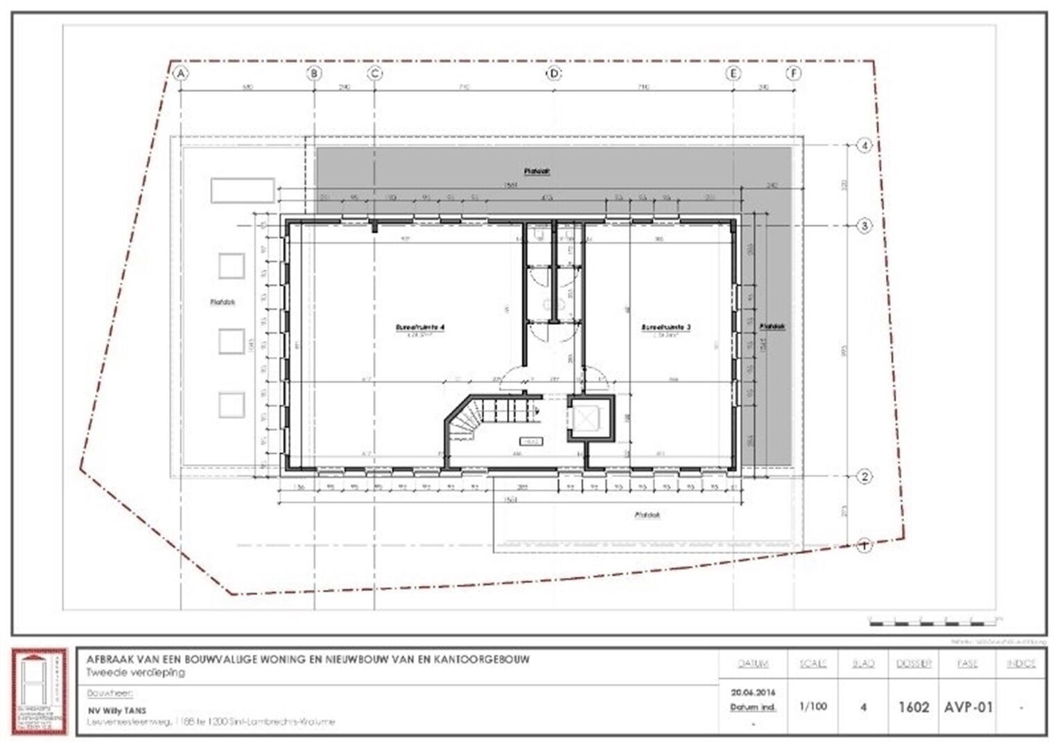
- 2de verdieping.pdf
- eerste verdieping.pdf
- gelijkvloerse verdieping parkings.pdf
- inplantingsplan.pdf
Schat uw maandelijkse afbetaling
Uw maandelijkse afbetaling zou bedragen.
Deze berekening is louter informatief en niet bindend.
Ik ben geïnteresseerd


Philippe Leplat
philippe@ap-p.be
+32 78 48 47 00

















