Example of new house to be built with Verelst on this beautiful building plot located a few hundred metres from the British School and the Africa Museum of Tervuren.
This south-facing land has a width on the street side of +/- 15.50 m on a depth of +/- 61 m for a total area of +/- 925 m².
Subject to obtaining an urban development certificate (in application), this land is suitable for building a detached house of +/- 9.50 wide at 15 m depth on the ground floor and 12 m depth on the first floor. Possible second floor in the roof or only 1 floor with flat roof also possible.
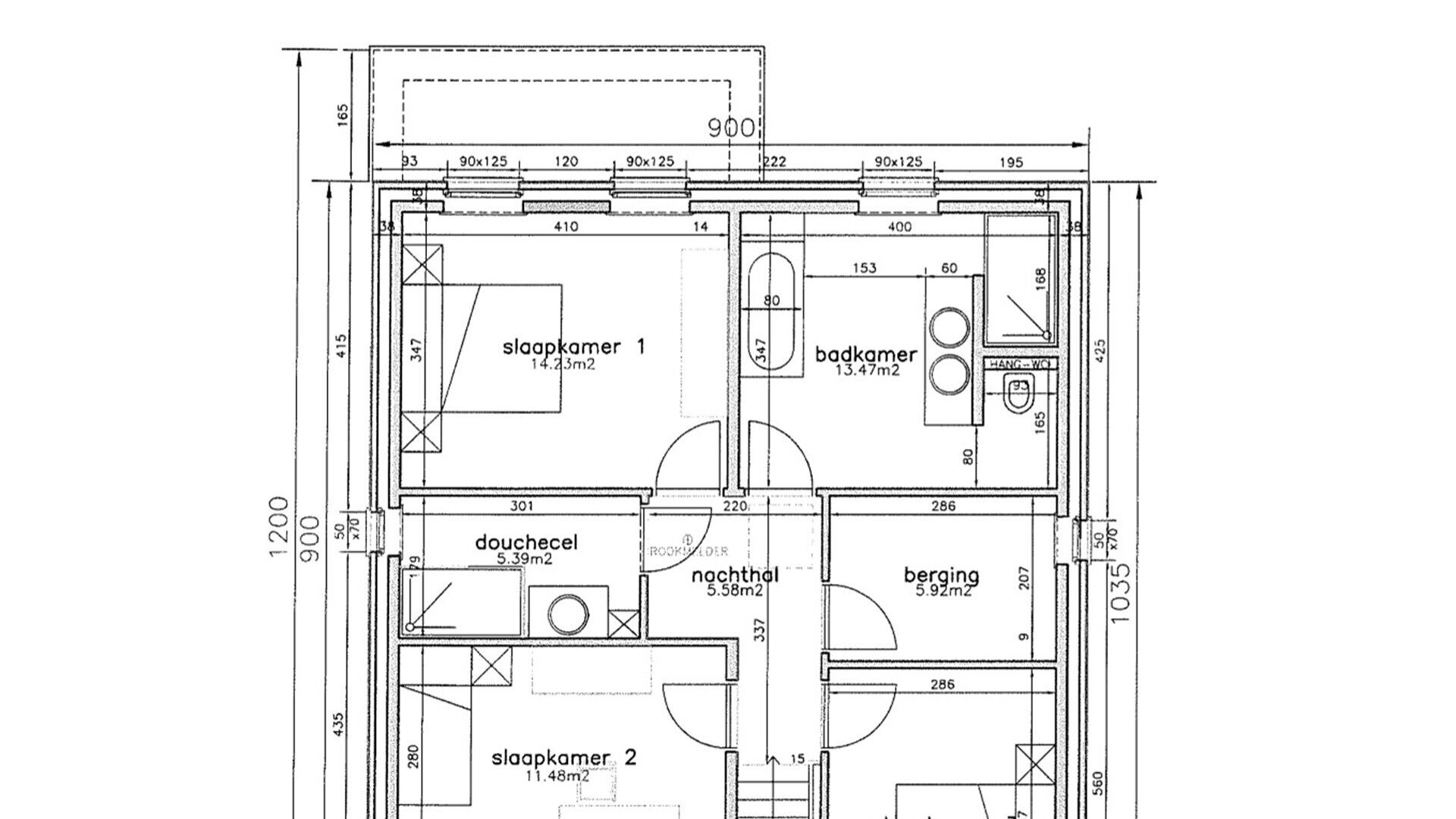
Attached are the plans of an example house with a large entrance hall, spacious living space of 46 m² with pen kitchen, an office, a storage room, and on the first floor, 3 bedrooms, a shower room and a bathroom and a storage/ dressing room. Under the roof an attic of +/- 40 m². Basic specifications Verelst;
The listed price is without registration duties on the land and without VAT on construction.
Not personalised on specific land (regulations, implantation, foundation,...)
Extract from general constructions regulations:
Maximum building depth is 15m on the ground floor and 12m on the first floor or 13m and 13m, have construction-free strip of 3m along the weather side (on right side 3m distance from the road to the rear plots). The total buildable volume will depend on the project(to be confirmed with the municipality). The permitted height below the cornice is 6m (gable roof between 20° and 45°) or 7m (flat roof). A maximum of 50% of the front garden may be paved. Maximum 40% paving compared to 60% greenery on the plot. The following general guidelines apply:
- 21m from the axis of the road (and according to advice from Roads & Traffic);
- Minimum frontage width 8m
More info at info@ap-p.be or by calling 078 /48 47 00
3327 views
- Netto price
- € 805.000
- Availability
- At deed
- Surface livable
- 180,0 m²
- Front width
- 9,0 m
- Surface lot
- 925,0 m²
- Lot width
- 16 m
- Lot depth
- 61 m
- Orientation garden
- South
- Orientation terrace
- South
- Offices
- 10,0 m²
- Parking outside
- 2
- Subdivision permit
- Yes
- Preemption right
- Yes
- Urbanism citation
- No Legal correction or administrative measure imposed
- Flood risk
- Not in flood area
- P-score
- C
- opmetingsplan.docx
- overstromingsrapport.pdf
- risicokaart-waterbeheerder.pdf
- voorbeeldwoning-4-gevels-klassiek-voor-en-achtergevels.pdf
- voorbeeldwoning-4-gevels-klassiek-1-verdieping.pdf
- voorbeeldwoning-4-gevels-klassiek-glv.pdf
- voorbeeldwoning-4-gevels-klassiek-zijgevels.pdf
- voorbeeldwoning-4-gevels-modern-1-verdieping.pdf
- voorbeeldwoning-4-gevels-modern-gevels.pdf
- voorbeeldwoning-4-gevels-modern-glv.pdf
Estimate your monthly installment
Your monthly installment would be .
This calculation is purely informative and not binding.
I am interested


Philippe Leplat
philippe@ap-p.be
+32 78 48 47 00














