This exclusive flat is located in the former veterinary school of Anderlecht, in a fully enclosed and private park of 3,5 hectares between greenery, old trees and restored period buildings.  
Within walking distance of the centre of Brussels, the Midi station (Thalys and TGV) and ideal accessibility by car and public transport.
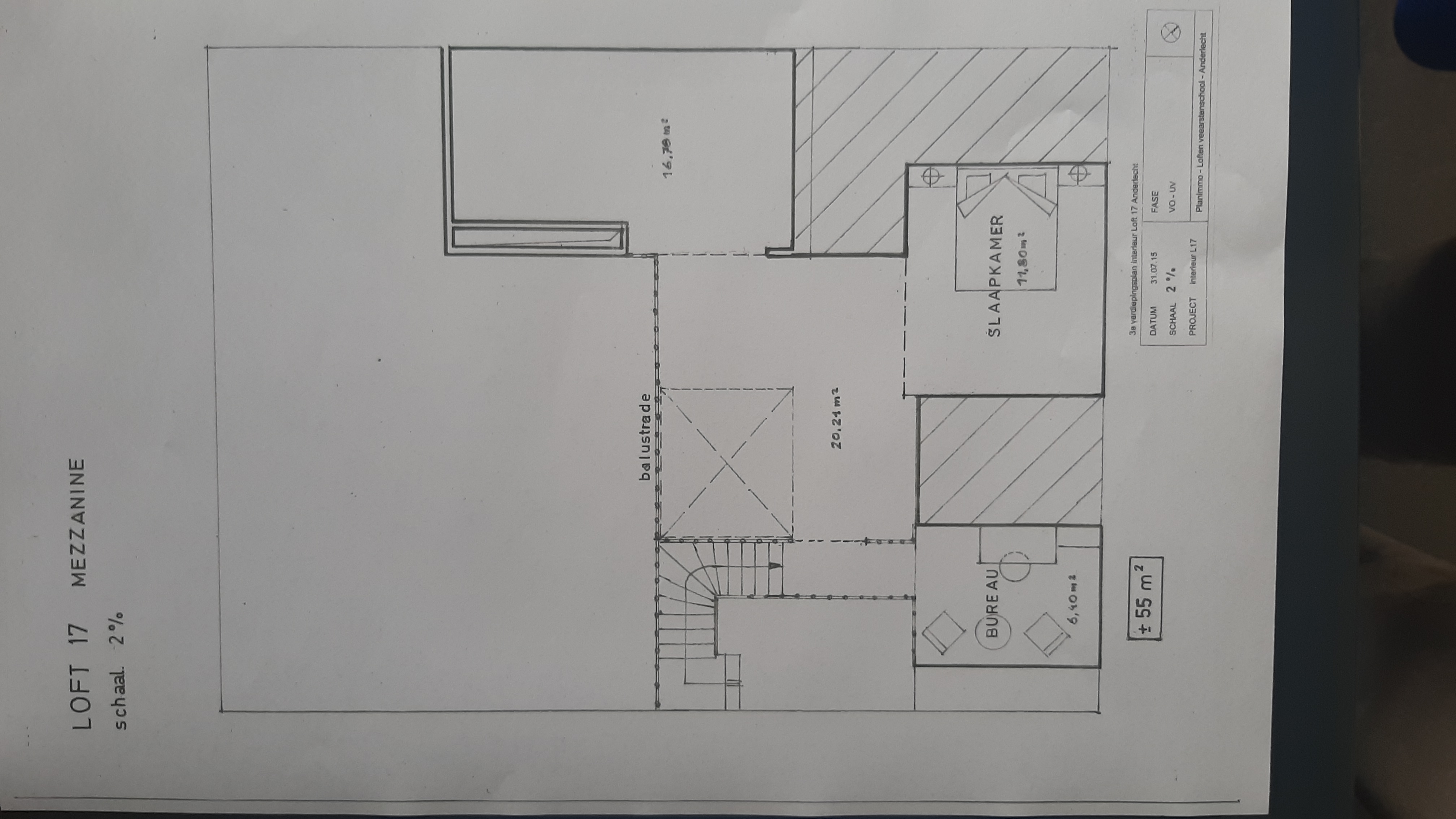
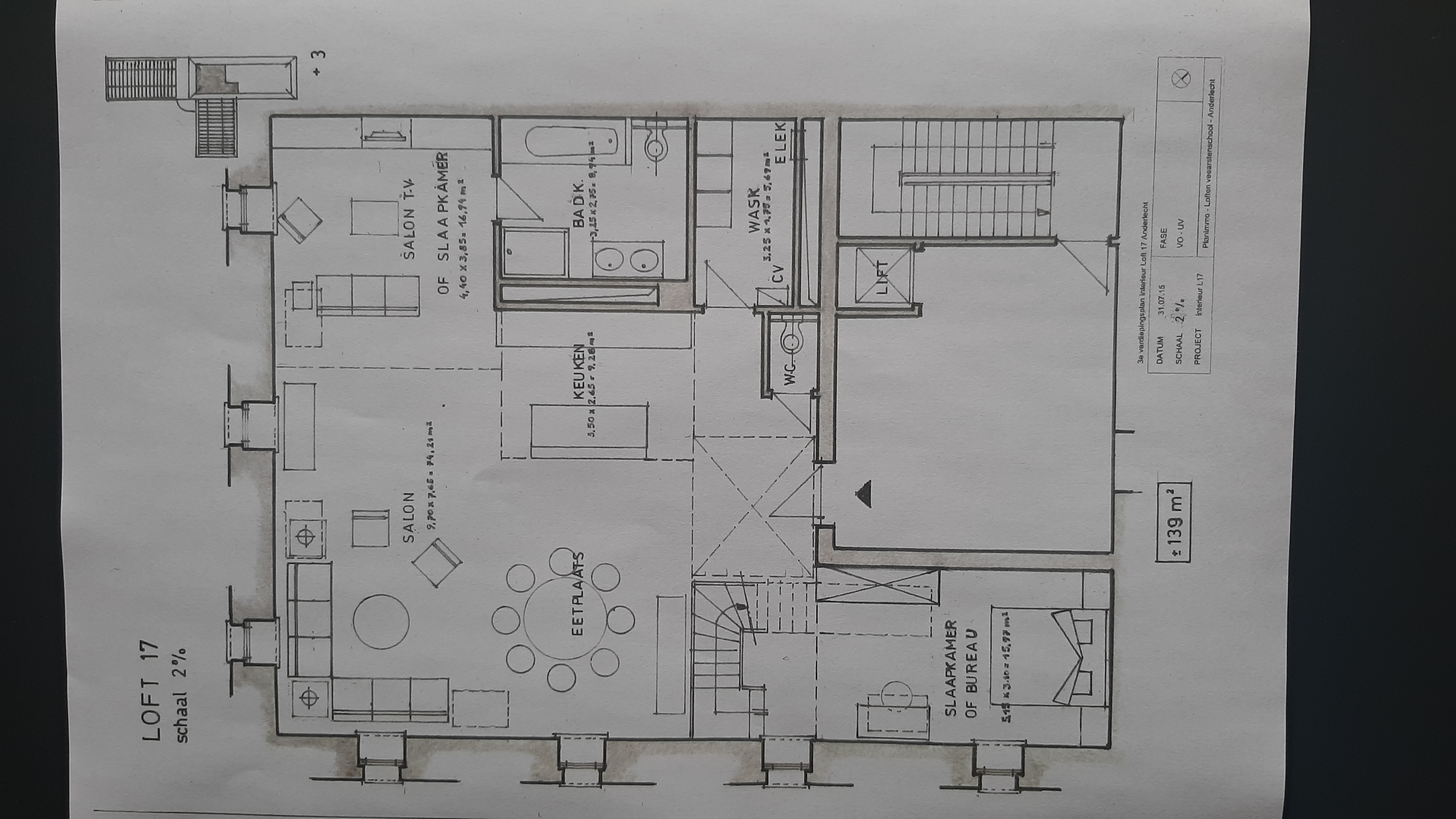
Located on the 3rd floor under the roof, this flat offers +/- 194 m² and is literally bathed into the light thanks to the numerous windows and the large roof windows.
Layout: open entrance hall, separate toilet, storage/laundry room, open plan fitted kitchen opening onto the living room of +/- 75 m², bathroom with bath, shower and double washbasins and toilet, a TV lounge area or space for a bedroom of +/- 17 m², a bedroom of +/- 16 m² or office space, magnificent mezzanine of 55 m² divided into an office space of +/- 6 m², a central space of +/- 20m², a space for a bedroom of +/- 12m², and a storage room of +/- 16 m². ( see photos of the plans ).
Not included in the selling price:
-Connection costs (opening of gas/electricity/water meters): 4.825 €.
-12,5% registration fee
Included in the selling price:
-individual cellar in the basement
-a common bicycle shelter.
-Free parking on the estate.
More information and viewing requests via 078/ 48 47 00 or info@ap-p.be.
4151 views
- Netto price
 - € 495.000
 - Availability
 - At deed
 
- Surface livable
 - 194,0 m²
 - Construction
 - Terraced
 - Construction year
 - 2015
 - State
 - Renovated
 - Floor
 - 3
 - Roof type
 - Flat roof
 
- Bedrooms
 - 2
 - Bathrooms
 - 1
 - Toilets
 - 2
 - Basemen
 - Yes
 
- Parking outside
 - 1
 
- Electricity
 - Yes
 
- Elevator
 - Yes
 - Connection gas
 - Yes
 
- EPC
 - 193 kWh/m²
 - EPC unique code
 - 201805020000526843011
 - Date EPC certificate
 - 02 May 2018
 - Glazing
 - Double glass
 - Heating type
 - Gas
 - Heater type
 - Individual
 
- Planning permission
 - Yes
 - Preemption right
 - Yes
 - Flood risk
 - Not in flood area
 
Neighbourhood
| Average age in the neighborhood | 31 years | 
|---|
Estimate your monthly installment
Your monthly installment would be .
This calculation is purely informative and not binding.
I am interested


Philippe Leplat
philippe@ap-p.be
+32 78 48 47 00
































