Deel van opbrengsteigendom bestaande uit 5 recente appartementen.
De verkoop betreft de verdiepingen van het gebouw, het gelijkvloers is momenteel niet te koop.
Ideaal gelegen aan de rand van het onlangs gerenoveerde en bruisend Fernand Coqplein in Elsene, bieden wij u een geheel van 5 appartementen aan.
Ze zijn momenteel allemaal verhuurd en bieden een huuropbrengst van 4%, kosten van de registratierechten meegerekend.
Het gebouw werd in 2010 volledig verbouwd en uitgebreid, de appartementen zijn dus recent en in goede staat en zonder enige stedenbouwkundige overtredingen.
Zeer lage gemeenschappelijke kosten, geen lift, geen syndicus.
Indeling:
Begane grond: hal en trap.
1ste verdieping: 2 appartementen: één aan de achterzijde (leeg) van +/- 85 m² met 1 slaapkamer en een bureau, de andere (verhuurd) van +/- 70 m² aan de voorzijde met een slaapkamer.
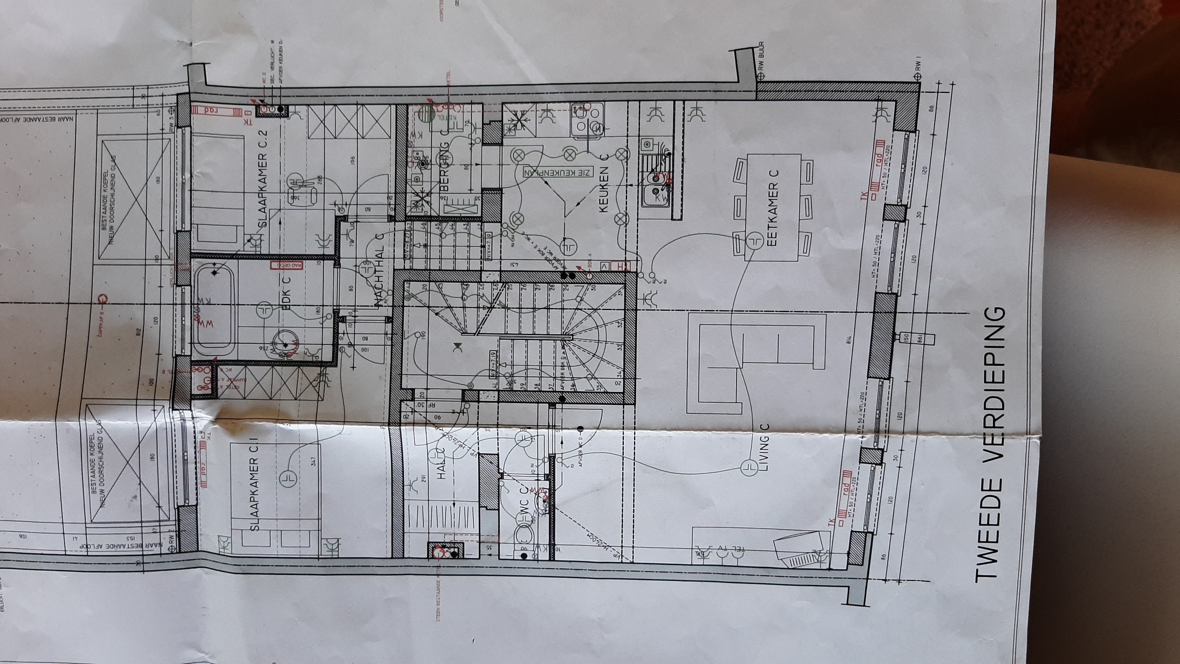
2de verdieping: 1 appartement van +/- 90 m² met 2 slaapkamers. (leeg).
3de verdieping: 2 duplex-appartementen van +/- 70 m² elk met 2 slaapkamers (allebei verhuurd).
Plannen beschikbaar op onze website www.ap-p.be.
Informatie en bezoeken op 078/ 47 48 00 of via info@ap-p.be
2733 keer bekeken
- Nettoprijs
- € 1.350.000
- Beschikbaarheid
- Overeentekomen
- Kadastraal inkomen
- € 3.278
- Opbrengsteigendom
- Ja
- Bewoonbare opp.
- 434,0 m²
- Constructie
- Gesloten
- Renovatiejaar
- 2010
- Gevelbreedte
- 8,5 m
- Type dak
- Platdak
- Terreinbreedte
- 9 m
- Slaapkamers
- 8
- Badkamers
- 5
- Toiletten
- 5
- EPC
- 101 kWh/m²
- EPC unieke code
- 20120531-00000090235-01-3
- Beglazing
- Dubbele beglazing
- Elektriciteitskeuring
- Ja, conform
- Verwarming
- Gas
- Type verwarming
- Individueel
- Bestemming
- Woongebied
- Bouwvergunning
- Ja
- Voorkooprecht
- Ja
- Dagvaarding
- Geen rechterlijke herstelmaatregel of bestuurlijke maatregel opgelegd
- Overstromingsrisico
- Niet gelegen in een overstromingsgevoelig gebied
- Kadaster sectie
- A
- Kadaster nummer
- 992/00F/P0003
- Kadaster entiteit
- Elsene
- Kadaster afdeling
- 1
- elek keuring 2de.pdf
- ketelonderhoud 2de.pdf
- 1ste verdieping.jpg
- 2de verdieping.jpg
- derde verdieping.jpg
- tweede niveau van de duplexen dakverdieping.jpg
- EPC 1ER ARR - 20220630-0000616122-01-2.pdf
- EPC 1ER AV - 20220630-0000616121-01-4.pdf
- EPC 2EME - 20220630-0000616123-01-0.pdf
- EPC 3D - 20220630-0000616125-01-5.pdf
- EPC 3G - 20220630-0000616124-01-8.pdf
Buurtinformatie
| Mobiliteitscore | 91% |
|---|---|
| Afstand tot centrum | 1.650 m |
| Afstand tot bushalte | 68 m |
| Afstand tot station | 768 m |
| Afstand tot winkel | 72 m |
| Afstand tot school | 109 m |
| Gemiddelde leeftijd in de buurt | 35 jaar |
Schat uw maandelijkse afbetaling
Uw maandelijkse afbetaling zou bedragen.
Deze berekening is louter informatief en niet bindend.
Ik ben geïnteresseerd


Philippe Leplat
philippe@ap-p.be
+32 78 48 47 00















































